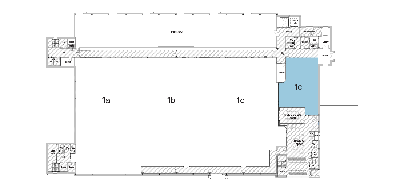
You can select any combination of these areas to suit your requirements:
Options available:
Specification:
Ready for CL2 labs, intense chemistry, biologics, CRO operations, biotech R&D, in-vivo research, regulated lab environments, and specialised translational studies.
Suite 2d in floor plan above is a fully-fitted, turn-key CL2 lab space.
-
Air handling units can be configured to support from ~14.9 up to 28 air changes per hour -
Bottled laboratory gases -
Strategically positioned drainage points -
Secure loading and storage yard -
Floor to ceiling working height of 2.6m (slab-to-slab 5.85m) -
Capacity for backup power provision by way of external generators -
Load bearing concrete floors -
4MVA to Riverlabs from UKPN -
Vinyl over screed floor coverings to laboratory areas -
High ducted fume cupboard capacity -
Primary heating and cooling via highly efficient, electrically driven air/water source heat pumps at roof level -
602 car parking spaces
Specification:
Ready for CL2 labs, intense chemistry, biologics, CRO operations, biotech R&D, in-vivo research, regulated lab environments, and specialised translational studies.
Suite 2d in floor plan above is a fully-fitted, turn-key CL2 lab space.
-
Air handling units can be configured to support from ~14.9 up to 28 air changes per hour -
Bottled laboratory gases -
Strategically positioned drainage points -
Secure loading and storage yard -
Floor to ceiling working height of 2.6m (slab-to-slab 5.85m) -
Capacity for backup power provision by way of external generators -
Load bearing concrete floors -
4MVA to Riverlabs from UKPN -
Vinyl over screed floor coverings to laboratory areas -
High ducted fume cupboard capacity -
Primary heating and cooling via highly efficient, electrically driven air/water source heat pumps at roof level -
602 car parking spaces
Specification:
Ready for CL2 labs, intense chemistry, biologics, CRO operations, biotech R&D, in-vivo research, regulated lab environments, and specialised translational studies.
Suite 2d in floor plan above is a fully-fitted, turn-key CL2 lab space.
-
Air handling units can be configured to support from ~14.9 up to 28 air changes per hour -
Bottled laboratory gases -
Strategically positioned drainage points -
Secure loading and storage yard -
Floor to ceiling working height of 2.6m (slab-to-slab 5.85m) -
Capacity for backup power provision by way of external generators -
Load bearing concrete floors -
4MVA to Riverlabs from UKPN -
Vinyl over screed floor coverings to laboratory areas -
High ducted fume cupboard capacity -
Primary heating and cooling via highly efficient, electrically driven air/water source heat pumps at roof level -
602 car parking spaces
Specification:
Ready for CL2 labs, intense chemistry, biologics, CRO operations, biotech R&D, in-vivo research, regulated lab environments, and specialised translational studies.
Suite 2d in floor plan above is a fully-fitted, turn-key CL2 lab space.
-
Air handling units can be configured to support from ~14.9 up to 28 air changes per hour -
Bottled laboratory gases -
Strategically positioned drainage points -
Secure loading and storage yard -
Floor to ceiling working height of 2.6m (slab-to-slab 5.85m) -
Capacity for backup power provision by way of external generators -
Load bearing concrete floors -
4MVA to Riverlabs from UKPN -
Vinyl over screed floor coverings to laboratory areas -
High ducted fume cupboard capacity -
Primary heating and cooling via highly efficient, electrically driven air/water source heat pumps at roof level -
602 car parking spaces

